1 7 E 23rd Avenue, Vancouver, BC

4 Bedroom Half Duplex for sale in Main area

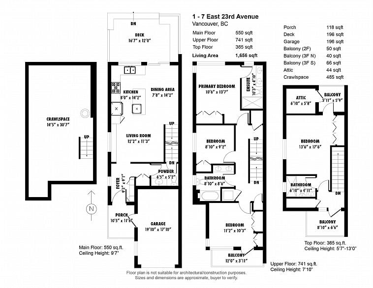
1 7 E 23rd Avenue
  • 1656 Sq Ft
  • 4 Bedrooms
  • 3 Bathrooms
$2,298,000

This newly built side-by-side duplex blends timeless design w/luxurious sophistication. With 4-beds/3.5 baths, the home flows effortlessly across 3 levels, ensuring no wasted space. The main floor feats a sleek Miele kitchen, anchoring the open living & dining areas, complete w/built-in bench seating & hidden storage. Sliding doors extend to a private backyard oasis w/built-in seating, perfect for entertaining. Upstairs are 3-beds & 2 full baths, incl. the spacious primary suite w/spa-inspired ensuite. Top floor is the ultimate retreat w/north & south patios, full bath, & flexible bdrm that can serve as an office, gym or media room. High-end finishes, custom millwork, heat pump +AC, 550 sqft crawl space, attached garage & an unbeatable location near Main Street complete this stunning home.

Property Details

  • Address : 1 7 E 23rd Avenue

    ZIP : V5V 1W8

  • City : Vancouver

    Province : BC

  • Area : Main

Property Features

  • Washer

  • Dryer

  • Dishwasher

  • Refrigerator

  • Stove

  • Microwave

  • Wine Cooler

Schedule a Visit

Error: Contact form not found.

property location

NOTE: This representation is based in whole or in part on data generated by the Chilliwack & District Real Estate Board, Fraser Valley Real Estate Board or Real Estate Board of Greater Vancouver which assumes no responsibility for its accuracy.