313 1330 Burrard Street, Vancouver, BC

1 Bedroom Apartment/Condo for sale in Downtown VW area

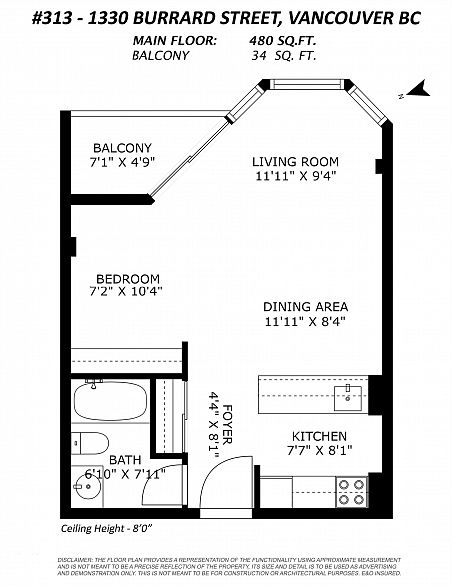
313 1330 Burrard Street
  • 480 Sq Ft
  • 1 Bedrooms
  • 1 Bathrooms
$398,000

Welcome to Anchor Point, a concrete building perfectly situated at the edge of Downtown, the West End, and Yaletown. This bright and efficient Jr. 1 Bedroom home offers 500 sq ft of indoor & outdoor living in a well designed open concept layout, functional kitchen, spacious living area, and a covered balcony with a quiet courtyard outlook. The building is well maintained with an on-site caretaker and features a rooftop deck with sweeping views of English Bay and the city ideal for sunsets and fireworks. Steps to the seawall, beaches, transit, shopping, and the best of Vancouver’s dining and entertainment, an effortless lifestyle awaits! Parking stall is available for rent through strata. Excellent opportunity for first-time buyers or investors!

Property Details

  • Address : 313 1330 Burrard Street

    ZIP : V6Z 2B8

  • City : Vancouver

    Province : BC

  • Area : Downtown VW

Property Features

  • Refrigerator

  • Stove

Schedule a Visit

Error: Contact form not found.

property location

NOTE: This representation is based in whole or in part on data generated by the Chilliwack & District Real Estate Board, Fraser Valley Real Estate Board or Real Estate Board of Greater Vancouver which assumes no responsibility for its accuracy.