2206 1277 Hornby Street, Vancouver, BC

1 Bedroom Apartment/Condo for sale in Downtown VW area

2206 1277 Hornby Street
  • 482 Sq Ft
  • 1 Bedrooms
  • 1 Bathrooms
$825,000

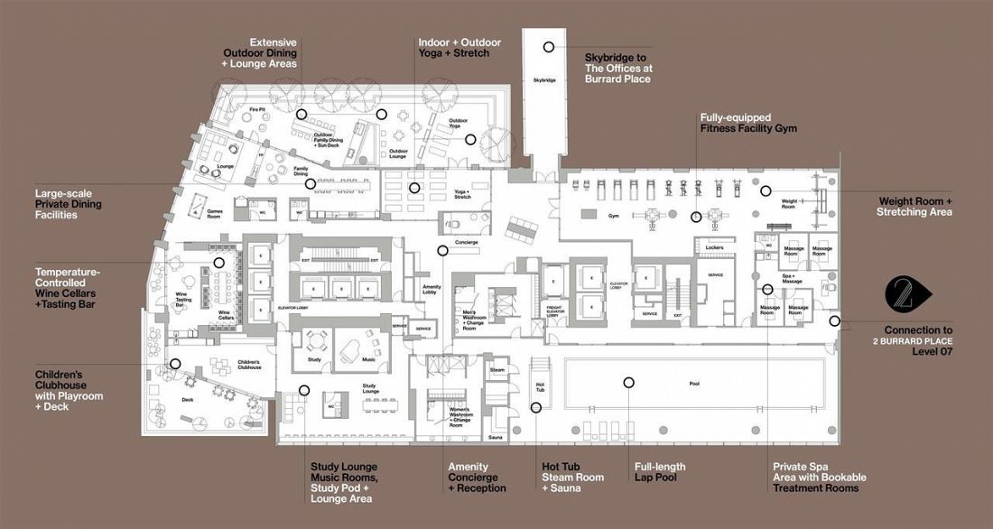
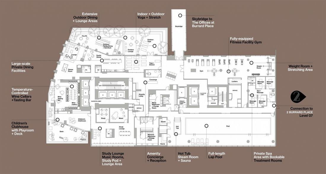
Assignment of Sale — Estimated Completion: Late 2026 Excellent Value! Experience luxury living at 2 Burrard Place. This stunning 1-Bedroom + Den residence features Euroluxe interiors, air conditioning, wide-plank hardwood floors, and a MITON Italian kitchen with GAGGENAU appliances. KICO wardrobes, a spa-inspired bathroom with heated floors, and CIELO fixtures enhance the home’s modern sophistication. Enjoy over 30,000 sq. ft. of Club One amenities, including a fitness centre, pool, spa, and concierge services. Steps away from world-class dining, shopping, and entertainment. Exceptional value — call for details.

Property Details

  • Address : 2206 1277 Hornby Street

    ZIP : V6Z 1W2

  • City : Vancouver

    Province : BC

  • Area : Downtown VW

Property Features

  • Washer

  • Dryer

  • Trash Compactor

  • Dishwasher

  • Disposal

  • Refrigerator

  • Stove

Schedule a Visit

Error: Contact form not found.

property location

NOTE: This representation is based in whole or in part on data generated by the Chilliwack & District Real Estate Board, Fraser Valley Real Estate Board or Real Estate Board of Greater Vancouver which assumes no responsibility for its accuracy.