1801 1277 Hornby Street, Vancouver, BC

1 Bedroom Apartment/Condo for sale in Downtown VW area

1801 1277 Hornby Street
  • 505 Sq Ft
  • 1 Bedrooms
  • 1 Bathrooms
$902,895

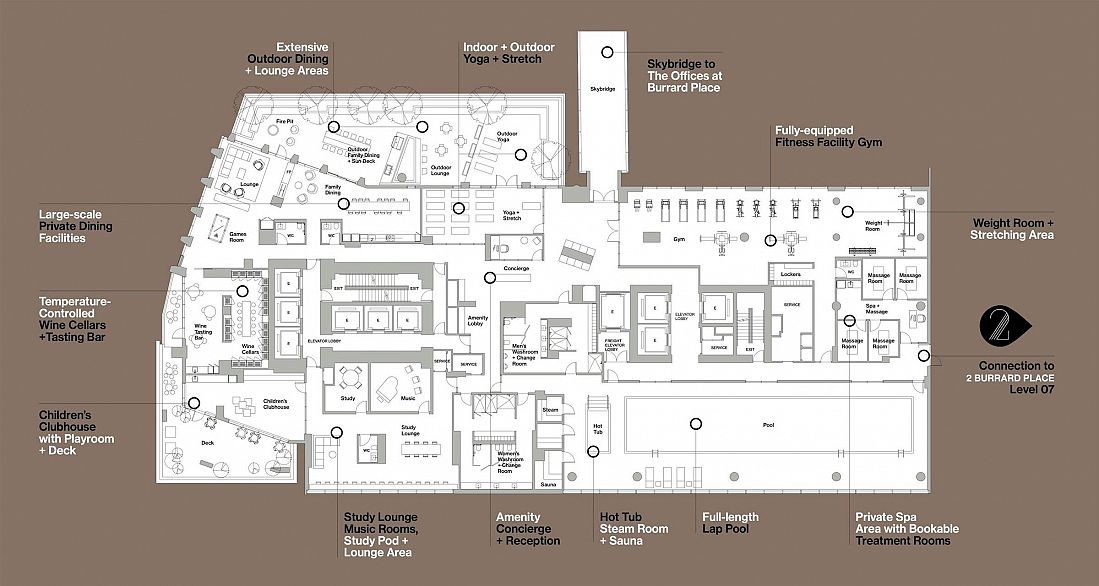
Experience unmatched luxury at 2 Burrard Place. This 1 bed + den home includes 1 parking stall and 1 bike locker. Enjoy the view of city skyline, and North Shore mountains from your private balcony. Interiors feature air conditioning, wide-plank hardwood floors, MITON Italian kitchen with GAGGENAU appliances, integrated KICO wardrobes, and a spa-inspired bathroom with heated floors and CIELO fixtures. Residents have access to 30,000 sqft of Club One amenities, including fitness centre, indoor pool, spa, lounges, and concierge services. Steps to dining, shopping, entertainment, and the seawall. Assignment of Contract at 2 Burrard Place, completing late 2026.

Property Details

  • Address : 1801 1277 Hornby Street

    ZIP : V6Z 1W2

  • City : Vancouver

    Province : BC

  • Area : Downtown VW

Property Features

  • Washer

  • Dryer

  • Dishwasher

  • Refrigerator

  • Stove

Schedule a Visit

Error: Contact form not found.

property location

NOTE: This representation is based in whole or in part on data generated by the Chilliwack & District Real Estate Board, Fraser Valley Real Estate Board or Real Estate Board of Greater Vancouver which assumes no responsibility for its accuracy.