1577 E 26th Avenue, Vancouver, BC

7 Bedroom Single Family Residence for sale in Knight area

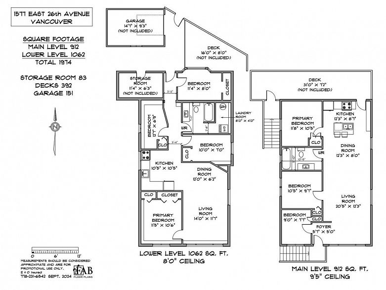
1577 E 26th Avenue
  • 1974 Sq Ft
  • 7 Bedrooms
  • 2 Bathrooms
$1,298,000

Court-ordered foreclosure sale in a prime East Vancouver location. This property features a main floor with three bedrooms and a four-piece bathroom, and a fully self-contained lower level with a private entrance, a four-bedroom suite currently operating as an Airbnb, a garage, and storage. Laser floor plans and a virtual tour are available. Ideally situated near Save-On Foods, the Vancouver Public Library, fitness centers, transit, and Kingcrest Park. Located within the sought-after catchment areas of Lord Selkirk Elementary and Gladstone High School. Not sure how the foreclosure process works? It’s straightforward—feel free to call me with any questions. Air B&B. 48 Hours' Notice for all showings. Thanks, Luke.

Property Details

  • Address : 1577 E 26th Avenue

    ZIP : V5N 2W1

  • City : Vancouver

    Province : BC

  • Area : Knight

Property Features

Schedule a Visit

Error: Contact form not found.

property location

NOTE: This representation is based in whole or in part on data generated by the Chilliwack & District Real Estate Board, Fraser Valley Real Estate Board or Real Estate Board of Greater Vancouver which assumes no responsibility for its accuracy.