3555 Quadra Street, Vancouver, BC

5 Bedroom Single Family Residence for sale in Dunbar area

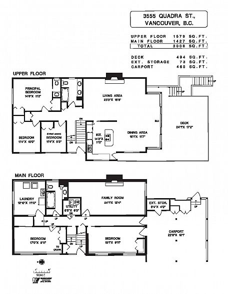
3555 Quadra Street
  • 3006 Sq Ft
  • 5 Bedrooms
  • 2 Bathrooms
$2,798,000

Located on a generous 46’ x 122’ sqft. corner lot in Dunbar, this bright and spacious 2-level split VIEW PROPERTY home features 5 beds & 2.5 baths across 3,006 sqft. of thoughtfully designed living space. Main floor find 2 bedrooms, spacious family room and laundry facilities. Upstairs find 3 bedrooms and an expansive open concept floor plan w/spacious principal rooms flooded with natural light. North-facing sun room opens to a substantial 494 square foot deck, perfect for outdoor entertaining and relaxation. Renovation potential abounds with this property, or it provides an ideal canvas to build your dream home from scratch. Close to Carnarvon Park, quality schools, and shops on Dunbar. A perfect blend of urban convenience and residential tranquility, make this an outstanding investment.

Property Details

  • Address : 3555 Quadra Street

    ZIP : V6S 2K9

  • City : Vancouver

    Province : BC

  • Area : Dunbar

Property Features

  • Washer

  • Dryer

  • Dishwasher

  • Refrigerator

  • Stove

Schedule a Visit

Error: Contact form not found.

property location

NOTE: This representation is based in whole or in part on data generated by the Chilliwack & District Real Estate Board, Fraser Valley Real Estate Board or Real Estate Board of Greater Vancouver which assumes no responsibility for its accuracy.