6878 Arlington Street, Vancouver, BC

3 Bedroom Townhouse for sale in Killarney VE area

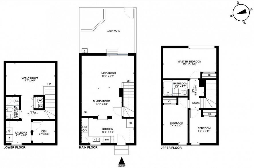
6878 Arlington Street
  • 1335 Sq Ft
  • 3 Bedrooms
  • 2 Bathrooms
$949,000

Welcome to this beautifully renovated 3-bedroom + den, 1,335 sq. ft. end-unit townhouse in the highly sought-after Killarney neighborhood of Vancouver! With a low strata fee of just $320, this move-in-ready home features an updated kitchen with modern cabinets, double-glazed windows, new patio doors, refreshed bathrooms, mirrored closet doors, quality laminate flooring, and a high-efficiency furnace. Enjoy your own private backyard oasis with a landscaped garden, fish pond, and lotus plants-perfect for relaxation. Conveniently located within walking distance to Killarney Secondary, Champlain Square, library, community centre with indoor pool, Central Park, and just minutes to Metrotown, this home offers the perfect blend of comfort, lifestyle, and location!

Property Details

  • Address : 6878 Arlington Street

    ZIP : V5S 3N9

  • City : Vancouver

    Province : BC

  • Area : Killarney VE

Property Features

  • Washer

  • Dryer

  • Dishwasher

  • Refrigerator

  • Stove

Schedule a Visit

Error: Contact form not found.

property location

NOTE: This representation is based in whole or in part on data generated by the Chilliwack & District Real Estate Board, Fraser Valley Real Estate Board or Real Estate Board of Greater Vancouver which assumes no responsibility for its accuracy.